Pnrr e rigenerazione urbana, un finanziamento 2 milioni di euro a Livorno per il Parco “Baden Powel”
Livorno, 3 gennaio 2022
L’articolato lavoro di proposte progettuali da finanziare con il Pnrr compiuto dall’Amministrazione comunale sta ottenendo riscontri significativi.
Il dossier Next Generation Livorno costruito nel 2021 ha portato al finanziamento nelle scorse settimane dei progetti Pinqua delle aree Parco Pertini/Cisternone e della zona ex Feltrinelli/Dogana D’acqua (per un totale di 28 milioni).
In queste ore di inizio 2022 ecco un’altra bellissima notizia, lo annuncia il sindaco Luca Salvetti, che riguarda i contributi da destinare a investimenti in progetti di rigenerazione urbana. Su questo fronte la Giunta aveva candidato l’area del Parco “Baden Powel” in Corea per un intervento complessivo da 2 milioni di euro che è stato completamente finanziato con i fondi Pnrr nella linea da destinare ad investimenti in realizzazione volte alla riduzione di fenomeni di marginalizzazione e degrado sociale, nonché al miglioramento della qualità del decoro urbano e del tessuto sociale ed ambientale.
“Mesi fa qualcuno si interrogava sulla qualità e l’importanza del lavoro fatto con il dossier Next Generation Livorno – commenta il Sindaco Luca Salvetti – ecco la risposta sta nella notizia di oggi del finanziamento da 2 milioni di euro per la rigenerazione dell’area Parco Baden Powel che segue quella da 28 milioni del Pinqua. Iniziamo il 2022 nel solco di ciò che abbiamo ottenuto anche nell’anno appena concluso, un grazie al lavoro dell’Assessora Viviani e degli uffici comunali che hanno curato il progetto e l’iter per arrivare al finanziamento”.
“Con i progetti arrivano le risorse e questa è una conferma – dice l’assessora Silvia Viviani – Prosegue l’impegno che poniamo nel riqualificare la città a partire dagli spazi pubblici per offrire attrezzature e servizi. Completiamo il Parco Baden Powell per incrementare i luoghi della socialità, aumentare il verde per il benessere di tutti e creare intorno alla scuola volano, costruita pochi mesi fa, una nuova centralità urbana accessibile a tutti.
Parco Baden Powell
2 milioni di euro
Tranches di assegnazione risorse:
616.616,96 nel 2022
554.112,99 nel 2023
351.455,43 nel 2024
254.886,54 nel 2025
222.928,07 nel 2026
Stato di progetto
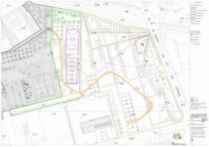
L’intervento in esame prevede il restauro del Parco Baden Powell ed il suo ampliamento verso la Via Firenze e concorre ad una più ampia riqualificazione dell’area in esame già avviata con la realizzazione della Scuola volano, attualmente in fase di ultimazione.
Il progetto di ampliamento prende avvio dalla rilettura del progetto originario; la recente realizzazione della “scuola volano” preclude la possibilità di completare il parco secondo il disegno originale e la individuazione di un’area attrezzata per la sgambatura dei cani risponde ad esigenze sociali e di fruizione non previste al momento della sua elaborazione ma che oggi risultano irrinunciabili. In tale chiave si prevede di rimuovere la porzione di recinzione che delimita il lato occidentale dell’area per arretrarla al bordo del percorso in “asfalto natura” che si intende interconnettere alla trama di analoghi percorsi lineari che interesseranno l’ampliamento del parco. Contestualmente al suo ridimensionamento in termini di superficie (circa 230 mq) si prevede di attrezzare l’area per la sgambatura con una fontanella in ghisa dedicata, analoga a quella esistente in corrispondenza dell’ingresso sud al parco, con ulteriori panchine e cestini portarifiuti e arredi per piccole stazioni di “agility dog”.
Il progetto prevede la rimozione delle piccole aree gioco esistenti e la creazione di un’ampia area giochi con attrezzature inclusive e fruibili da bambini di varie fasce di età (altalene con cestone, giostre, pannelli ludici, giochi a molla e giochi composti e integrati) all’interno della collocazione originaria scelta dallo Studio LAND; l’area gioco sarà integralmente rispondente alle disposizioni dei Criteri Ambientali Minimi vigenti in materia di arredi urbaIl progetto prevede inoltre il ripristino delle attrezzature dello skate park al fine di restituire a piena fruizione una delle aree che rappresentano un tratto distintivo del parco che conferisce allo spazio pubblico una dimensione urbana che supera la rilevanza di dotazione e attrezzatura di quartiere.
Il tema del restauro del parco sarà completato con il ripristino delle essenze secondo il disegno e le previsioni originarie per quanto non incompatibile con lo presenza dell’elettrodotto Terna 532+593, a 132kW. L’ampliamento del parco comporterà la rimozione dei rifiuti insistenti sull’area e l’eventuale bonifica della porzione di area interessata dall’incendio distruttivo del 29 agosto 2020 e la riproposizione di alcuni dei temi propri del progetto originario: lo sviluppo e la prosecuzione del percorso in cemento con andamento curvilineo, il “ring” che accompagna lo sviluppo di vari “episodi” del parco fino ad una nuova
piazza con triplice filare di lecci (Quercus ilex) in analogia a quelle esistenti.
Lungo il percorso del “nuovo ring” che intercetterà la maglia regolare dei percorsi lineari in “asfalto natura” troverà collocazione una vasta area playground per lo svolgimento libero di attività ludico-sportive (basket e minibasket, calcio e tennis tavolo) in coerenza con lo sviluppo del progetto n. 21 “Sport per Tutti” della missione n. 5 Inclusione e Coesione del Programma “Next Generation Livorno” che prevede “la creazione di infrastrutture sportive a bassa soglia nelle aree verdi e la riqualificazione di impianti sportivi in quartier periferici come opportunità di riqualificazione urbana e di promozione dell’attività sportiva come fattore di protezione sociale ed educazione alla salute con particolare attenzione ai bambini, ai giovani e agli anziani. Gli spazi aperti di questo progetto sono pensati come luoghi di innovazione urbana, per promuovere modelli, anche sperimentali, che adottino soluzioni orientate all’accessibilità universale (design for all) e, in particolare, per le attività fisiche e lo sport amatoriale”.
Il progetto prevede il ripristino dell’accesso al parco lungo la Via Firenze, oggi ampiamente sottoutilizzato.
L’intervento si completa con la piantumazione di nuovi esemplari arborei (delle specie già previste dalla Studio LAND) secondo la logica del rimboschimento e dei filari alberati con le identiche finalità di riproporre il tema della “forestazione urbana” e del potenziamento della rete ecologica all’interno del tessuto insediativo nonché di “isolamento” acustico e visivo rispetto alla rete viaria contermine e alle strutture cimiteriali circostanti.
L’ampliamento seguirà i criteri progettuali originari anche in termini di realizzazione di sistemi drenanti e relativamente al completamento dell’impianto di illuminazione pubblica.
Descrizione delle opere previste
Ai fini del restauro e dell’ampliamento del parco si rendono necessarie le seguenti operazioni:
• Rimozione dei giochi esistenti, delle relative superfici antitrauma, demolizione delle opere di sottofondo, trasporto e smaltimento;
• Installazione nuovi giochi inclusivi e realizzazione delle relative superfici antitrauma il tutto in conformità a CAM vigenti;
• Rimozione della rete di recinzione esistente sul lato occidentale;
• Riparazione cancelli di accesso;
• Realizzazione nuova rete in “orsogrill” lato occidentale area di sgambatura cani;
• Installazione di nuova fontana in ghisa (comprensiva di scavi, opere di allettamento e posa di tubazioni di adduzione e scarico e relative opere di allaccio), panchine, cestini e arredi per l’area di sgambatura cani conformi a CAM vigenti;
• Pulizia dell’area dalla vegetazione infestante, ivi compresa quella esistente lungo l’accesso dalla Via Firenze, trasporto e smaltimento del materiale di risulta;
• Potatura essenze arboree esistenti ed interventi di gestione degli esemplari ammalorati o pericolosi;
• Piantumazione di n. 42 lecci (Quercus ilex), n. 15 salici (Salix caprea), n. 11 gelsi (Morus alba), n. 23 pioppi (Populus alba) e n. 11 tamerici (Tamerix gallica) distribuiti nei filari, nelle piazze alberate e nelle aree di rimboschimento di nuova realizzazione ed ;
• Rimozione e smaltimento attrezzi area skate e installazione nuove pedane conformemente a CAM vigenti;
• Ripristino impianto di irrigazione “goccia a goccia” e ampliamento della rete in assistenza alle nuove piantumazioni;
• Scavi e movimenti terra per consentire lo sviluppo di percorsi integralmente accessibili;
• Realizzazione di nuovi percorsi lineari in asfalto natura ed estendimento del “ring” in cemento spazzolato e pigmentato comprese le opere di esecuzione del sottofondo;
• Realizzazione di playground in “asfalto natura” e relative opere di sottofondo;
• Allestimento aree di playground, installazione arredi e tracciature campi da gioco;
• Realizzazione piazza alberata in “asfalto natura” previa esecuzione delle opere di sottofondo;
• Esecuzione di opere di drenaggio con realizzazione di trincee in ghiaia e TNT lungo la trama dei percorsi, intorno alla piazza alberata ed ai playground;Seminagione di prato con manto erboso misto (40% Poa pratensis e 60% Cynodon dactylus var. Santana) previa preparazione del terreno e stesa di terra vegetale;
• Installazione nuove recinzioni in pali e rete;
• Installazione cancelli pedonali e carrabili in acciaio zincato di disegno lineare;
• Installazione arredi (panchine e cestini) analoghi a quelli esistenti e rastrelliere;
• Realizzazione impianto di illuminazione pubblica (comprensiva di scavi, opere di allettamento e posa di tubazioni, pozzetti e chiusini, opere di allaccio);
• Scavi e posa in opera di rete di raccolta e smaltimento delle acque meteoriche (pozzetti e caditoie stradali), fresatura e nuova asfaltatura accesso carrabile con tracciatura della segnaletica orizzontale e installazione della segnaletica verticale;
Le lavorazioni edili e impiantistiche sommariamente descritte dovranno essere precedute da specifici e mirati interventi di pulizia, smontaggio delle strutture esistenti, cernita, rimozione e avvio a trattamento dei rifiuti presenti nell’area oggetto di ampliamento, dal successivo campionamento dei terreni e dall’analisi di rischio ambientale relativo all’eventuale contaminazione dei suoli connessa all’evento incidentale sopra ricordato oltre agli eventuali interventi di compensazione o mitigazione ambientale.

